Audio Nirvana fan club

Discussion in 'VNAV's Fan Club' started by tcqanh, 28/1/11.

  1. tcqanh

    tcqanh Advanced Member

    Joined:
    11/9/07
    Messages:
    8.015
    Likes Received:
    92
    Location:
    Q3, Sài Gòn
    dãi cao này không thiếu nếu chịu khó nghe kỹ. nó khá chói ở những tiếng treble miệng, tiếng guitar, giọng nữ, trống bằng đồng. các âm thanh này ở khoảng bi nhiêu hẹc vậy bác ?

    một phần nghe treble không nhiều là do loa 15 Al này cho tiếng bass quá nhiều trong 1 cái phòng chưa được xử lý. hãy nhìn đáp tần của nó là biết ngay... Qts 0.9... híc

    bác Pointed, cái gì cũng vậy. thử mới biết. lý thuyết tính toán chỉ mang tính gợi ý. khà khà :D

    thoai em đi cắt đây. chúc các cụ đầu tuần vui :lol:
     
  2. DIY-lover

    DIY-lover Advanced Member

    Joined:
    12/8/07
    Messages:
    7.338
    Likes Received:
    87
    Location:
    TBG - HCMC
    Cụ mà để nguyên thủy nó vậy thì nhiều bài nghe không nổi luôn đấy. Loa gì thì cũng có cái hay, cái chưa được nên mình phải huấn luyện nó một tí cho nó phục vụ mình tốt hơn :wink:
     
  3. mtbc

    mtbc Advanced Member

    Joined:
    11/9/06
    Messages:
    6.908
    Likes Received:
    2.414
    Location:
    Q3, Saigon
    Phần thùng em dùng 5.6mkII, tức là quay mặt hẹp ra trước. Lỡ đóng gần xong rồi chừ không đổi mẫu được nữa ạ.

    Port xài lỗ 102mm, ván dày 21mm. Em dùng sketchup vẽ.

    Bữa nghe thử phần trên loa này bị sạn thiệt đó các sếp.
     

    Attached Files:

  4. Pointed

    Pointed Advanced Member

    Joined:
    1/12/08
    Messages:
    2.557
    Likes Received:
    66
    Location:
    ...Sáng áo bông ...Tối áo phông
    Em nghĩ NEO có độ động và chi tiết rất tốt khác CF nhiều, là phẳng tới đâu mình hoàn toàn có thể chủ động cân chỉnh. Hôm qua thùng 13.6 kêu hay hơn 5.6 mặc dù dùng cùng củ Alnico một phần vì vật liệu làm từ ván HDF, độ cứng cao hơn, tránh được tiếng rung của thùng và thất thoát năng lượng do vỏ thùng bị rung. Cá nhân em thấy cha DV thiết kế vỏ mấy thùng lớn hơi mỏng.
    AE hôm qua cũng đang bàn tính sao mod lại thùng 13.6 sao cho hợp mắt tí nữa, để nguyên vậy mang tiếng hoa hậu béo wá :wink:
     
  5. pc_chip

    pc_chip Advanced Member

    Joined:
    18/12/05
    Messages:
    5.042
    Likes Received:
    740
    Location:
    THỦ ĐỨC GROUP
    Mấy hôm nay topic này hot quá nên em rón rén đứng ngoài theo dõi thì vô tình tìm ra chân lý ở đây rồi. Hay quá! :wink: 8)
     
  6. newceco

    newceco Advanced Member

    Joined:
    13/11/07
    Messages:
    554
    Likes Received:
    32
    Hôm qua chở vợ đi chợ thấy vợ mua cái thảm chùi chân này:
    [​IMG]
    Em định xin vợ để lót thùng loa các bác thấy có ổn không ạ? thảm rất nhẹ, lông bên ngoài dày khoảng 1cm rất mềm, bên trong có đệm lớp mút mỏng thì phải. Em tính lót thùng để hút tiếng trung & treble.
     
  7. mrseven

    mrseven Advanced Member

    Joined:
    28/10/09
    Messages:
    3.646
    Likes Received:
    5
    Nhờ bác pc_chip hướng dẫn dùng phần mềm + thiết bị ''hay rẻ dễ'' để đo đáp tần phòng nghe cho hội Nir. Thanks
     
  8. freshaudio

    freshaudio Advanced Member

    Joined:
    16/6/07
    Messages:
    695
    Likes Received:
    521
    Bác mtbc,
    Kiểu thùng của bác đẹp đấy, miếng mica đen bác cố định với mặt trước loa bằng gì vậy để em làm theo với? Port 102mm là nhỏ hơn khuyến cáo hả bác?
    Lúc đầu em cũng máu chơi theo 5.6MKII nhưng sau khi tính toán thì thấy thùng loa nặng quá, phải hơn 50kg/thùng chưa tính củ, sức em không thể mang vác lên xuống cầu thang được! :D
    nên giờ em sẽ chuyển qua 2.8 cho nhẹ bớt.
     
  9. DIY-lover

    DIY-lover Advanced Member

    Joined:
    12/8/07
    Messages:
    7.338
    Likes Received:
    87
    Location:
    TBG - HCMC
    Theo Em, Cụ xử như vầy thì sẽ cân bằng các dải tần mà độ nhạy của loa sẽ được giữ rất cao :wink:



    [​IMG]

    Phần nhô lên 2.8kHz và 13kHz có thể dùng mạch dưới đây để lọc (giá trị R có thể thay đổi cho phù hạp với tai nghe)
     

    Attached Files:

  10. mtbc

    mtbc Advanced Member

    Joined:
    11/9/06
    Messages:
    6.908
    Likes Received:
    2.414
    Location:
    Q3, Saigon
    Cảm ơn Thầy, em sẽ dùng 2 cái mắt lọc trước, còn vụ horn từ từ tính... Thùng lỡ đóng rồi mà. Hì hì... :wink:
     
  11. DIY-lover

    DIY-lover Advanced Member

    Joined:
    12/8/07
    Messages:
    7.338
    Likes Received:
    87
    Location:
    TBG - HCMC
    Dạ, từ trước tới nay Em chỉ dám làm Trò thui ợ. :)
    Em xin đề xuất phương án HRD thử còi xem sao :wink:
    Cụ ra mấy chỗ bán loa SK ở Điện Biên Phủ mua cặp còi này (loại to nhất) về cưa ngắn cho cái lỗ vừa với miệng loa 12" rồi gắn vào, mặt ngoài của còi thì mua cỡ chục bình Silicon (dùng dán kính) xịt lên để daping cho cái còi đỡ vang
    [​IMG]
     
  12. soz

    soz Advanced Member

    Joined:
    15/12/05
    Messages:
    420
    Likes Received:
    18
    Ấy chớ có coi thường giải pháp này nhé. Nghe đồn bác Thuyết buôn voi ngày xưa lấy được mối Voi là nhờ mấy cái loa phường này đấy :lol:

     
  13. mtbc

    mtbc Advanced Member

    Joined:
    11/9/06
    Messages:
    6.908
    Likes Received:
    2.414
    Location:
    Q3, Saigon
    Si nghĩ... ngó bộ hay rẻ dễ và dzị nữa... em khoái :lol:
    [​IMG]
     
  14. soz

    soz Advanced Member

    Joined:
    15/12/05
    Messages:
    420
    Likes Received:
    18
    Đừng có mà xui dại nhé, làm thế này thì chơi quách nó Beyma cho đỡ chứ fullrang làm dề nữa.
     
  15. DIY-lover

    DIY-lover Advanced Member

    Joined:
    12/8/07
    Messages:
    7.338
    Likes Received:
    87
    Location:
    TBG - HCMC
    Em nghe ai đó từng nói câu " Đỉnh cao của Fullrange là 4.5 way" :lol:
     
  16. pc_chip

    pc_chip Advanced Member

    Joined:
    18/12/05
    Messages:
    5.042
    Likes Received:
    740
    Location:
    THỦ ĐỨC GROUP
    Vậy chắc em nghĩ cụ cũng đã hiểu rõ "đỉnh cao của passive là active" rồi cụ nhỉ! Em toàn thấy dân Pờ Rồ họ chơi active cả đấy thôi! :lol:

    Em trốn đây ạ!
     
  17. tcqanh

    tcqanh Advanced Member

    Joined:
    11/9/07
    Messages:
    8.015
    Likes Received:
    92
    Location:
    Q3, Sài Gòn
    mai mốt em đổi chữ ký thành " Đỉnh cao của DIY là chơi đồ hãng ", mà đồ hãng thì tuyệt đại đa số là passive :lol:

    em thấy bác DIY-lơver đã thử nghiệm rất nhiều thứ trên dàn loa 4.5 Beyma nhưng còn thiếu 1 cái chưa thử. các bác đoán xem lão chưa thử nghiệm cái giề ? :mrgreen:
     
  18. pc_chip

    pc_chip Advanced Member

    Joined:
    18/12/05
    Messages:
    5.042
    Likes Received:
    740
    Location:
    THỦ ĐỨC GROUP
    Hãng nào vậy ạ. Chắc là mấy hãng Hí èn và Hí fài chứ Rồ họ toàn chơi active chứ ạ! Cụ không thấy hãng nào cũng nói là "đem cả buổi trình diễn về nhà bạn"! Thế chẳng phải là cố làm cho cái passive nó giống với cái dàn active của các buổi trình diễn là gì! :lol:
     
  19. DIY-lover

    DIY-lover Advanced Member

    Joined:
    12/8/07
    Messages:
    7.338
    Likes Received:
    87
    Location:
    TBG - HCMC
    Em thấy vũ trường, sân vận động toàn dùng hệ thống Active không à, ý cụ Chíp là nên dùng hệ thống Liên hợp quốc để đem Vũ trường về tận nhà phải hông ạ ?
     
  20. DIY-lover

    DIY-lover Advanced Member

    Joined:
    12/8/07
    Messages:
    7.338
    Likes Received:
    87
    Location:
    TBG - HCMC
    Hiện tại Em chưa làm sao cho ra được tiếng Bass rần rần, ồm ồm giống như B380. Thử hoài mà Bass nó cứ rõ như ban ngày thía, khó quá.
     
  21. pc_chip

    pc_chip Advanced Member

    Joined:
    18/12/05
    Messages:
    5.042
    Likes Received:
    740
    Location:
    THỦ ĐỨC GROUP
    Có vẻ cụ bị dị ứng với sân khấu, với vũ trường, với sân vận động quá nhỉ!!! Cụ cứ bình tĩnh ngồi tĩnh tâm xem lại xem các đĩa thu "live" về phát trên mấy cái loa bé xíu ở nhà ta nó có được mấy phần cái không khí ấy! Đi đâu loanh quanh cho đời mỏi mệt! :oops: :wink:

    Thôi, em trả lại cái topic hot này cho các bác! Không ở đây spam một hồi lại bị "ném đá" hội đồng thì chít! Dạo này em yếu tim lắm! 8)
     
  22. pc_chip

    pc_chip Advanced Member

    Joined:
    18/12/05
    Messages:
    5.042
    Likes Received:
    740
    Location:
    THỦ ĐỨC GROUP
    Nhà vách gỗ như kiểu người Nhật hay mấy quán nhà lá ở dưới quê em cũng chẳng mấy khi thấy bass bị rần rần, ồm ồm! Với lại loa có Fs >30Hz thì có xuống được bao sâu đâu mà nó rần cụ ơi! :p

    PS: dạo này cụ chinh chiến ghê quá nhỉ! hihi....
     
  23. Pointed

    Pointed Advanced Member

    Joined:
    1/12/08
    Messages:
    2.557
    Likes Received:
    66
    Location:
    ...Sáng áo bông ...Tối áo phông
    Chắc là chưa dám đi thi thử :wink:

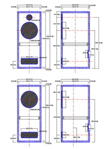
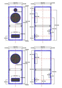
    Mà thôi BS ơi quay lại chuyên môn đi, cái thùng 13.6 đã tính lại hộ anh kích thước mới chưa? nếu chưa thì mới chỉnh lại hai mẫu này nhờ BS kiểm tra dùm cái nha. Hai mẫu này có kích thước giống hệt nhau, chỉ khác nhau diện tích vent, anh nghe đồn đâu đó rằng nếu làm lỗ vent lớn thì sẽ cho ra tiếng bass mềm mại hơn, không phải kiểu thọi vào mẹt như loa sân khấu :mrgreen: mà BS đâu có iu loa sân khấu đâu hén :wink:
     

    Attached Files:

  24. tcqanh

    tcqanh Advanced Member

    Joined:
    11/9/07
    Messages:
    8.015
    Likes Received:
    92
    Location:
    Q3, Sài Gòn
    câu slogan này... em thấy quen lắm. siêu thị điện máy... treo poster đầy :lol:

    em thấy có lão chơi active với loa nhiều dãi thời gian dài nay chuyển qua loa full Nir và tự quấn cuộn cảm. các cụ biết ai hông ? :D
     
  25. DIY-lover

    DIY-lover Advanced Member

    Joined:
    12/8/07
    Messages:
    7.338
    Likes Received:
    87
    Location:
    TBG - HCMC
    Em thấy các nhạc cụ thật mấy khi xuống được 30Hz đâu, thường thì dưới 30Hz chỉ phục vụ cho fan nhạc cụ điện tử thui :mrgreen:

    [​IMG]

    P/s: Em thấy dạo này Cụ hơi bị đuối với BS nên nhảy vào phụ 1 tay.
     

    Attached Files:

Share This Page

Loading...